Toggle Navigation
  

Пеллетный котел Neus Joker Pellet 60 кВт бункер 500л сталь 6 мм


  • Отзывы: (0)
Код товара: 418737
Код товара: 418737
Есть в наличии
207300.00 грн.
186570 грн. по промокоду система

Описание, краткие характеристики

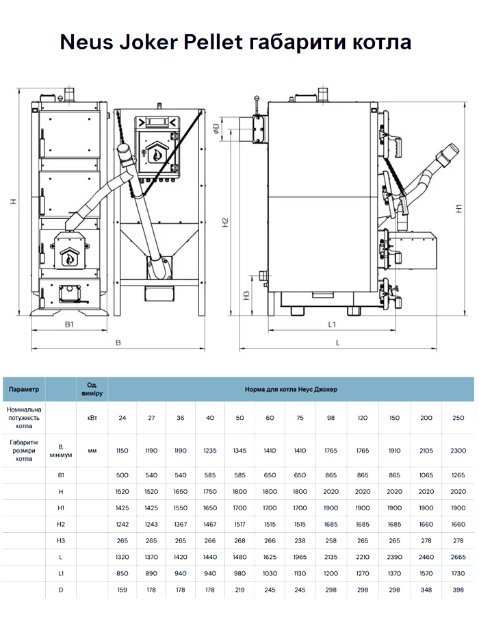
Вес, кг: 740
Глубина, мм: 1625
Ширина, мм: 1410
Высота, мм: 1800
Автоматика: есть
Диаметр дымохода, мм: 250
Площадь обогрева, м2: 600
Материал теплообменника: сталь
Номинальная мощность, кВт: 51 - 60
Твердотопливный котел Neus Joker Pellet — автоматизированный отопительный котел на основе модели Neus Joker, разработанный для работы на деревянных пеллетах.

Котел оборудован факельной горелкой для эффективного сжигания пеллет и подвижными колосниками для самоочистки. Подача пеллет в горелку осуществляется автоматически через шнек за счет мотор-редуктора, соединенного с топливным бункером, расположенным сбоку от котла. Весь процесс управляется блоком управления в автоматическом режиме с возможностью дистанционного управления (опция). При необходимости перевести пеллетный котел в ручной режим загрузки топлива, достаточно либо демонтировать горелку и заглушить заглушкой(в комплекте), либо снять дверь с горелкой, повесив глухую дверь(не в комплекте).
 
Основные преимущества
  • Многоходовой теплообменник;
  • Компактные габариты;
  • Возможность перевода в ручной режим;
  • Толщина стали – 6мм.
Neus Joker Pellet технические характеристики
 
Параметр
Ед. измерения
Норма для котла Neus Joker Pellet
Номинальная мощность котла
кВт
60
75
98
120
150
200
250
Площадь поверхности теплообмена в котле
м2
5,1
5,7
8
8,6
9,5
13,3
17,5
Емните бункера для топлива
дм3
500
500
700
700
1000
1000
1000
Водяная емкость котла
л
195
215
300
320
345
445
560
Масса котла без воды
кг
740
970
1050
1100
1200
1570
1900
Температура топочных газов на выходе из котла
°C
100-180
100-180
100-180
100-180
100-180
100-180
100-180
Рекомендуемая минимальная температура воды
°C
58
58
58
58
58
58
58
Максимальная температура воды
°C
85
85
85
85
85
85
85
Номинальное давление воды
МПа
0,2
0,2
0,2
0,2
0,2
0,2
0,2
Потребление электроэнергии в работе
Вт
80
80
100
100
100
500
500
Потребление электроэнергии при разжигании
Вт
800
800
800
800
800
1200
1200
Диаметр патрубков прямой и обратной сетевой воды (Ду)
мм
50
65
65
80
80
100
100
Рекомендуемые параметры дымохода
площадь сечения
см2
452
452
660
660
660
908
1194
внутренний диаметр
мм
250
250
300
300
300
350
400
высота (минимально допустимая)
м
6
7
7
7
8
9
10
Диаметр штуцера под предохранительный клапан (Ду)
мм
20
20
25
25
50
50
50
Необходимая величина давления срабатывания предохранительного клапана
МПа
0,25
0,25
0,25
0,25
0,25
0,25
0,25
 

Оставить отзыв

Ваше имя

Ваш e-mail

Коментарий

   

Оплата частями

Оплата частями

Бесплатная доставка

Бесплатная доставка

Подарок

Подарок


Пеллетный котел Neus Joker Pellet 60 кВт бункер 500л сталь 6 мм
207300.00
Пеллетный котел Neus Joker Pellet 60 кВт бункер 500л сталь 6 мм с доставкой. У нас ✔ низкая цена ✔ широкий ассортимент ✔ описание товара ✔ отзывы и ✔ гарантия качества ➠ 100% от интернет-магазина Система.
  1. Главная
  2. Каталог
  3. Твердотопливные котлы
  4. Пеллетные котлы
  5. NEUS
  6. Пеллетный котел Neus Joker Pellet 60 кВт бункер 500л сталь 6 мм