Toggle Navigation
  

Пеллетный котел Neus Joker Pellet 24 кВт бункер 300л сталь 6 мм


  • Отзывы: (0)
Код товара: 418737
Код товара: 418737
Есть в наличии
128100.00 грн.
115290 грн. по промокоду система

Описание, краткие характеристики

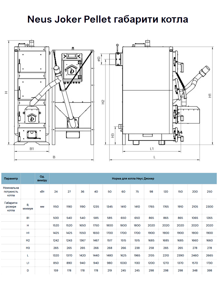
Вес, кг: 374
Глубина, мм: 1320
Ширина, мм: 1150
Высота, мм: 1520
Автоматика: есть
Диаметр дымохода, мм: 160
Площадь обогрева, м2: 240
Материал теплообменника: сталь
Отвод отработанных газов: принудительный (турбо)
Подача топлива: автоматическая
Номинальная мощность, кВт: 21 - 25
Твердотопливный котел Neus Joker Pellet  — автоматизированный отопительный котел на основе модели Neus Joker, разработанный для работы на деревянных пеллетах.

Котел оборудован факельной горелкой для эффективного сжигания пеллет и подвижными колосниками для самоочистки. Подача пеллет в горелку осуществляется автоматически через шнек за счет мотор-редуктора, соединенного с топливным бункером, расположенным сбоку от котла. Весь процесс управляется блоком управления в автоматическом режиме с возможностью дистанционного управления (опция). При необходимости перевести пеллетный котел в ручной режим загрузки топлива, достаточно либо демонтировать горелку и заглушить заглушкой(в комплекте), либо снять дверь с горелкой, повесив глухую дверь(не в комплекте).
 
Основные преимущества
  • Многоходовой теплообменник;
  • Компактные габариты;
  • Возможность перевода в ручной режим;
  • Толщина стали – 6мм.
Neus Joker Pellet технические характеристики
 
Параметр Ед. измерения Норма для котла Neus Joker Pellet
Номинальная мощность котла кВт 19 24 27 36 40 50
Площадь поверхности теплообмена в котле м2 2,2 2,4 2,7 3,3 3,9 4,3
Емните бункера для топлива дм3 300 300 300 300 300 500
Водяная емкость котла л 98 107 117 142 160 175
Масса котла без воды кг 330 374 415 470 515 560
Температура топочных газов на выходе из котла °C 100-180 100-180 100-180 100-180 100-180 100-180
Рекомендуемая минимальная температура воды °C 58 58 58 58 58 58
Максимальная температура воды °C 85 85 85 85 85 85
Номинальное давление воды МПа 0,15 0,15 0,15 0,15 0,15 0,2
Потребление электроэнергии в работе Вт 80 80 80 80 80 80
Потребление электроэнергии при разжигании Вт 800 800 800 800 800 800
Диаметр патрубков прямой и обратной сетевой воды (Ду) мм 50 50 50 50 50 50
Рекомендуемые параметры дымохода
площадь сечения см2 201 201 201 248 248 377
внутренний диаметр мм 160 160 160 180 180 220
высота (минимально допустимая) м 5 5 5 5 5 6
Диаметр штуцера под предохранительный клапан (Ду) мм 15 15 15 15 15 20
Необходимая величина давления срабатывания предохранительного клапана МПа 0,2 0,2 0,2 0,2 0,2 0,25
 
 

Оставить отзыв

Ваше имя

Ваш e-mail

Коментарий

   

Оплата частями

Оплата частями

Бесплатная доставка

Бесплатная доставка

Подарок

Подарок


Пеллетный котел Neus Joker Pellet 24 кВт бункер 300л сталь 6 мм
128100.00
Пеллетный котел Neus Joker Pellet 24 кВт бункер 300л сталь 6 мм с доставкой. У нас ✔ низкая цена ✔ широкий ассортимент ✔ описание товара ✔ отзывы и ✔ гарантия качества ➠ 100% от интернет-магазина Система.
  1. Главная
  2. Каталог
  3. Твердотопливные котлы
  4. Пеллетные котлы
  5. NEUS
  6. Пеллетный котел Neus Joker Pellet 24 кВт бункер 300л сталь 6 мм