Toggle Navigation
  

Пеллетный котел Neus Joker Pellet 120 кВт бункер 700л сталь 6 мм


  • Отзывы: (0)
Код товара: 418737
Код товара: 418737
Есть в наличии
367200.00 грн.
330480 грн. по промокоду система

Описание, краткие характеристики

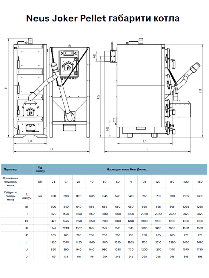
Вес, кг: 1100
Глубина, мм: 2210
Ширина, мм: 1765
Высота, мм: 2020
Автоматика: есть
Диаметр дымохода, мм: 300
Площадь обогрева, м2: 1200
Материал теплообменника: сталь
Номинальная мощность, кВт: 91 - 120
Твердотопливный котел Neus Joker Pellet — автоматизированный отопительный котел на основе модели Neus Joker, разработанный для работы на деревянных пеллетах.

Котел оборудован факельной горелкой для эффективного сжигания пеллет и подвижными колосниками для самоочистки. Подача пеллет в горелку осуществляется автоматически через шнек за счет мотор-редуктора, соединенного с топливным бункером, расположенным сбоку от котла. Весь процесс управляется блоком управления в автоматическом режиме с возможностью дистанционного управления (опция). При необходимости перевести пеллетный котел в ручной режим загрузки топлива, достаточно либо демонтировать горелку и заглушить заглушкой(в комплекте), либо снять дверь с горелкой, повесив глухую дверь(не в комплекте).
 
Основные преимущества
  • Многоходовой теплообменник;
  • Компактные габариты;
  • Возможность перевода в ручной режим;
  • Толщина стали – 6мм.
Neus Joker Pellet технические характеристики
 
Параметр Ед. измерения Норма для котла Neus Joker Pellet
Номинальная мощность котла кВт 60 75 98 120 150 200 250
Площадь поверхности теплообмена в котле м2 5,1 5,7 8 8,6 9,5 13,3 17,5
Емните бункера для топлива дм3 500 500 700 700 1000 1000 1000
Водяная емкость котла л 195 215 300 320 345 445 560
Масса котла без воды кг 740 970 1050 1100 1200 1570 1900
Температура топочных газов на выходе из котла °C 100-180 100-180 100-180 100-180 100-180 100-180 100-180
Рекомендуемая минимальная температура воды °C 58 58 58 58 58 58 58
Максимальная температура воды °C 85 85 85 85 85 85 85
Номинальное давление воды МПа 0,2 0,2 0,2 0,2 0,2 0,2 0,2
Потребление электроэнергии в работе Вт 80 80 100 100 100 500 500
Потребление электроэнергии при разжигании Вт 800 800 800 800 800 1200 1200
Диаметр патрубков прямой и обратной сетевой воды (Ду) мм 50 65 65 80 80 100 100
Рекомендуемые параметры дымохода
площадь сечения см2 452 452 660 660 660 908 1194
внутренний диаметр мм 250 250 300 300 300 350 400
высота (минимально допустимая) м 6 7 7 7 8 9 10
Диаметр штуцера под предохранительный клапан (Ду) мм 20 20 25 25 50 50 50
Необходимая величина давления срабатывания предохранительного клапана МПа 0,25 0,25 0,25 0,25 0,25 0,25 0,25
 
 

Оставить отзыв

Ваше имя

Ваш e-mail

Коментарий

   

Оплата частями

Оплата частями

Бесплатная доставка

Бесплатная доставка

Подарок

Подарок


Пеллетный котел Neus Joker Pellet 120 кВт бункер 700л сталь 6 мм
367200.00
Пеллетный котел Neus Joker Pellet 120 кВт бункер 700л сталь 6 мм с доставкой. У нас ✔ низкая цена ✔ широкий ассортимент ✔ описание товара ✔ отзывы и ✔ гарантия качества ➠ 100% от интернет-магазина Система.
  1. Главная
  2. Каталог
  3. Твердотопливные котлы
  4. Пеллетные котлы
  5. NEUS
  6. Пеллетный котел Neus Joker Pellet 120 кВт бункер 700л сталь 6 мм